電液動扇形閘門TDSZ型
一、用處
本系列電液動扇形閘門是按照建材行業的特別須要,用作水泥熟料庫底除塵裝備的抱負卸料裝配。
二、特色
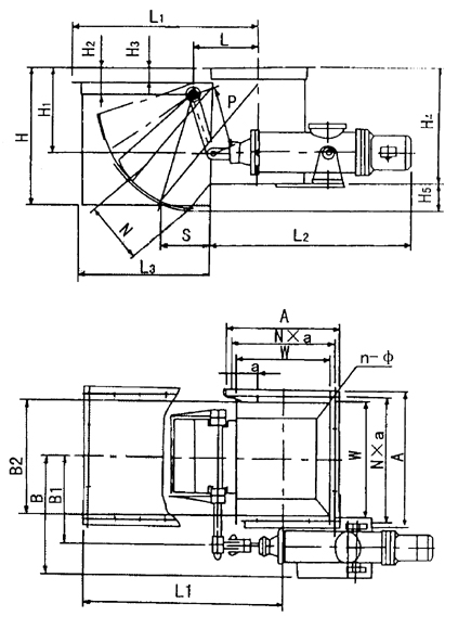
電液動扇形閘門在出料口處裝備了防塵罩,防止了塵埃飛騰:接納電液推桿作能源源,代替氣缸傳動,節儉了工程投資本錢;電液動扇形閘門閥體接納階臺布局,削減了料流打擊;閥體關頭部位鋪設柵欄布局的耐磨襯板,削減了襯板間接磨損。
三、機能參數
合用介質 |
枯燥粉塵 |
任務溫度 |
≤150℃ |
卸灰量 |
6-80m2/h |
型號 | 首要尺寸(mm) | 電液推桿型號 | 功率KW | |||||||||||||||||||
W | A | A1 | A2 | B | B1 | B2 | L | L1 | L2 | L3 | H | H1 | H2 | H3 | H4 | H5 | P | N×a | n×Φ | |||
TDSZ-30 | 300 | 400 | 120 | 150 | 350 | 470 | 300 | 300 | 800 | 1175 | 600 | 380 | 429 | 170 | 60 | 340 | 150 | 280 | 2×175 | 8-18 | DYZ700-280/110-P | 1.1 |
TDSZ-40 | 400 | 500 | 220 | 250 | 400 | 520 | 400 | 350 | 900 | 1175 | 650 | 540 | 429 | 170 | 60 | 480 | 140 | 280 | 3×150 | 16-18 | DYTZ700-280/110-P | 1.5 |
TDSZ-50 | 500 | 626 | 320 | 350 | 450 | 570 | 500 | 400 | 1050 | 1220 | 737 | 680 | 513 | 190 | 70 | 610 | 120 | 350 | 4×140 | 16-18 | DYTZ700-300/110-P | 1.5 |
TDSZ-60 | 600 | 726 | 360 | 390 | 500 | 620 | 600 | 450 | 1200 | 1220 | 837 | 750 | 513 | 190 | 70 | 670 | 150 | 350 | 4×165 | 16-18 | DYTZ700-300/110-P | 2.2 |
TDSZ-70 | 700 | 840 | 460 | 490 | 550 | 670 | 700 | 500 | 1400 | 1340 | 980 | 900 | 560 | 190 | 80 | 820 | 150 | 400 | 5×154 | 20-22 | DYTZ700-350/110-P | 2.2 |
TDSZ-80 | 800 | 940 | 560 | 590 | 600 | 720 | 800 | 550 | 1550 | 1340 | 1080 | 1050 | 560 | 190 | 80 | 950 | 150 | 400 | 5×174 | 20-22 | DYTZ700-350/110-P | 2.2 |
上一頁:[閥門]
下一頁:XG系列扭轉加料器
您能會對左右貨物感其樂無窮
產物好不好 用讓我們的事跡簡介否認
奧普對象協作火伴
企業范圍怎樣樣 用我們的天賦聲明函
出產才能怎樣樣 用我們的裝置和專業團體注明
消息靜態
- 全国空降少女视频:電動百葉閥和蝶閥的區分,別錯過
- 全国空降少女视频:側式懸臂堆料機在開機前的操縱要點講授
- 全国空降少女视频:對于螺旋保送機,這些常識點要領會
- 螺旋閘門的布局及分類特色
- NE板鏈斗式晉升機的平常保護請求
- 氣箱脈沖袋收塵器發生結露的緣由是甚么
- 領會氛圍保送斜槽的操縱注重點嗎
- 全国空降少女视频:圓形堆取料機的布局特色及利用
- 全国空降少女视频:翻板卸灰閥的布局道理,領會嗎
- 全国空降少女视频:星型卸灰閥的利用要點講授
- 全国空降少女视频:螺旋閘門的布局及分類特色
- 全国空降少女视频:電液動扇形閘門的布局特色及利用講授
- 全国空降少女视频:手動蝶閥具備較好的流量節制特征
- 電液動扇形閘門接納全封鎖布局
- 電液動扇形閘門,四通分料閥各有所長
- 均衡閥布局特色跟任務道理